環境試験室設備工事
製品耐久試験室
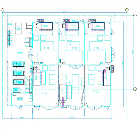
A・B・C室ごとにあらゆる製品の耐久性をテストすることができ、測定データは最先端の商品開発に生かされます。
ここでご紹介するのは、ほんの一例です。
測定温度、湿度等は設計段階での変更により温度‐40℃~80℃±2℃、湿度10%~95%±3%のどんな環境条件もつくりだすことができ、お客様のニーズにより家電製品から自動車まで、あらゆる製品の耐久テストが可能です。
ここでご紹介するのは、ほんの一例です。
測定温度、湿度等は設計段階での変更により温度‐40℃~80℃±2℃、湿度10%~95%±3%のどんな環境条件もつくりだすことができ、お客様のニーズにより家電製品から自動車まで、あらゆる製品の耐久テストが可能です。
システムの条件
計測データの収集方法(供試機)
A・B・C室の各室100点。合計300点のデータを同時に計測する事が可能です。
計測システムは、データロガ(MX100)を使用し、メモリーカードにて記録すると共にパソコン画面でも確認が可能です。
計測システムは、データロガ(MX100)を使用し、メモリーカードにて記録すると共にパソコン画面でも確認が可能です。
| A室条件:可変恒温恒室システム | |
| 温度 (±0℃~40℃) ±2℃ | 湿度 (30%~95%) ±3% |
| B室条件:二重構造間接空調システム | |
| 温度 (5℃~40℃) ±2℃ | 湿度 100%常時結露 |
| C室条件:可変高温空調システム | |
| 温度 (20℃~60℃) ±2℃ | 湿度 成行き |
※画像クリックで拡大表示されます
浴室ユニット環境変化シュミレーション試験室
環境試験室内にユニットバスを造作し、その周囲の温度・湿度の変化プロファイルを任意に設定ができます。
環境の変化がユニットバスにあたえる影響を見る事ができるシステム設備です。
環境の変化がユニットバスにあたえる影響を見る事ができるシステム設備です。
システムの条件
時間と温度と湿度の変化を自由に作り出せます
| 試験室条件 可変恒温恒湿室システム (下記計測データ例) | ||
| 温度 (‐20℃ ~ 50℃) ±1.5℃ | 湿度 (40% ~ 90%) ±3% | 温湿度変化時間 2時間 ~ 24時間 |
※画像クリックで拡大表示されます
5室マルチエアコン能力評価試験室
マルチエアコンのJIS(ISO)能力評価を可能とする試験室を施工しました。
温度条件は‐30℃~52℃まで、湿度条件は25%~85%まで可変温湿度設定できます。
温度条件は‐30℃~52℃まで、湿度条件は25%~85%まで可変温湿度設定できます。
システムの条件
①コントロール精度
調節計を使用しての試験室の温度, 湿度制御を二段制御で設定された温度・湿度に対し、±0.1℃・1%の超高精度なコントロールを実現しました。
②低温領域における湿度コントロール
一般的には低温領域(‐20℃,・70%)では加湿しても水分が空気に取り込まれず、低温領域での加湿コントロールは難しいとされていますが、当社のシステムでは低温領域において空気中の加湿コントロールを可能にしました。
※画像クリックで拡大表示されます
温度・湿度 実測データ
温度・湿度の条件別データです。画像クリックで写真が拡大されます。
























